Atlanta Residence | Modern 1 bedroom apartment | 77sqm exclusive garden


  • 1 Bedrooms
  • 1 Baths
  • 149 sqm built
Description

Ideally located in the Aviatiei area, behind the Crystal Palace hotel, 950m from the Aurel Vlaicu - Promenada metro and 1500m from Herastrau Park, this boutique building has 9 residential units spread over 3 levels, Ug+Gf+2. There are only 3 apartments/level with 2 and 4 rooms each.
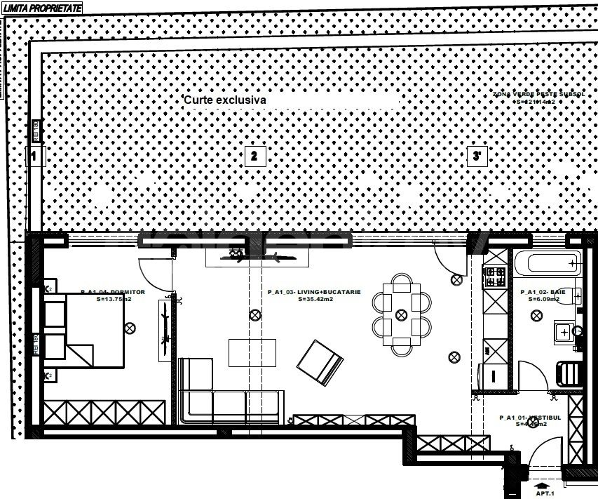
The apartment is located on the ground floor and benefits from an exclusive garden.
The total area is 149sqm of which 72sqm built, 59sqm usable plus 77sqm garden.
It consists of a spacious living room with a dining area and kitchen of 36sqm, a bedroom of 14sqm with a dressing area and a bathroom of 6sqm.
Technical specifications:
The structure is made of reinforced concrete with 30cm Porotherm brick filling, thermally and soundproofed slab, the rooms optimally compartmentalized without lost spaces with large glazed surfaces. The thermal insulation is provided by the complete system from Caparol, the windows are with Salamander Green Evolution tripane profiles, the elevator is Klemann.
Each unit has individually metered utilities, the building having its own central and heat pumps.
The finishes and equipment are modern and of good quality: triple layered parquet, underfloor heating, large ceramics, Ideal Standard sanitary ware, Pinum doors, Schneider electric.
Advantages:
The location very close to the metro and the most developed office area of the city, the proximity of all points of interest within walking distance are the main asset of this project. Smart partitioning, high rooms, small number of units, modern installations and finishes are also just some of the reasons why you should choose Atlanta Residence.

Floor Plans
€ 215.600+VAT
  • 2803207, Aviatiei

    Atlanta Residence | Modern 1 bedroom apartment | 77sqm exclusive garden

Similar Properties


€ 850.000+VAT
  • 3 Bedrooms
  • 3 Baths
  • 207 sqm

Located in Aviatiei area, near Floreasca Lake, this 3 bedrooms apartment is on the 3rd floor of an Ug+Gf+5 building completed in 2015. It has a built area of 207sqm of which 154sqm usable and 21sqm... Read more

€ 3200/month+VAT
  • 3 Bedrooms
  • 3 Baths
  • 0 sqm

Located in Herastrau - Aviatiei area, a short distance from Herastrau Park, this 3 bedrooms apartment is on the 7th floor of a 2Ug+Gf+12 building completed in 2021. It has a built area of 150sqm of... Read more

€ 7500/month+VAT
  • 0 Bedrooms
  • 2 Baths
  • 300 sqm

Located in the Aviatiei area, a short distance from the subway, this commercial space has an area of 300sqm and is located on the ground floor + mezzanine of a building Ug+Gf+11. It is composed of... Read more